BUSINESS CENTER AND IPERMEKET “LA MONGOLFIERA” VIA JAPIGIA

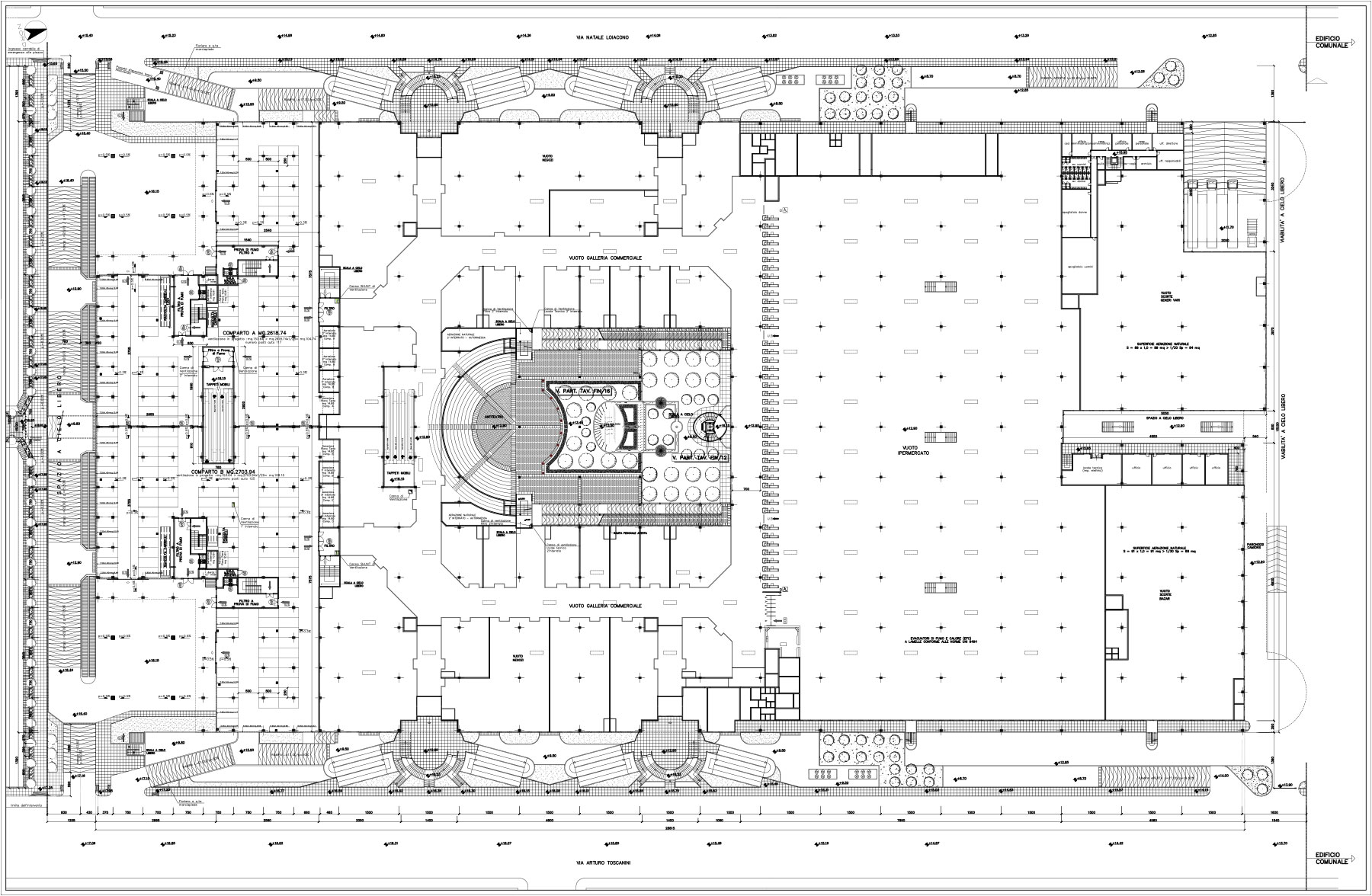
Ipercoop business center and ipermarket "La Mongolfiera" in via Japigia
Ipercoop business center and ipermarket "La Mongolfiera" in via Japigia
Ipercoop business center and ipermarket "La Mongolfiera" in via Japigia
Ipercoop business center and ipermarket "La Mongolfiera" in via Japigia
Ipercoop business center and ipermarket "La Mongolfiera" in via Japigia
Ipercoop business center and ipermarket "La Mongolfiera" in via Japigia
Ipercoop business center and ipermarket "La Mongolfiera" in via Japigia
Ipercoop business center and ipermarket "La Mongolfiera" in via Japigia
Ipercoop business center and ipermarket "La Mongolfiera" in via Japigia
Ipercoop business center and ipermarket "La Mongolfiera" in via Japigia
Ipercoop business center and ipermarket "La Mongolfiera" in via Japigia
Ipercoop business center and ipermarket "La Mongolfiera" in via Japigia

BUSINESS CENTER AND IPERMEKET “LA MONGOLFIERA” VIA JAPIGIA


DURATION: 2002 – 2004


PLACE: Bari, Italia


TYPE OF ASSIGNMENT: private assignment


BUDGET: 51.645.689 euro


CLIENT: Japigia 200 S.r.l. Torino


PROGRAM: Architectural and structural Design of a business center with annexed underground parking with 2.300 parking spaces


CREDITS: Studio Tecnico Ingg. M.D.F. Sylos Labini


BUSINESS CENTER AND IPERMEKET “LA MONGOLFIERA” VIA JAPIGIA

Updated on 2016-02-17T19:17:37+01:00, by admin.