NEW BARI POLICE STATION IN VIA JAPIGIA

New Bari Police station
New Bari Police station
New Bari Police station
New Bari Police station
New Bari Police station
New Bari Police station
New Bari Police station
New Bari Police station

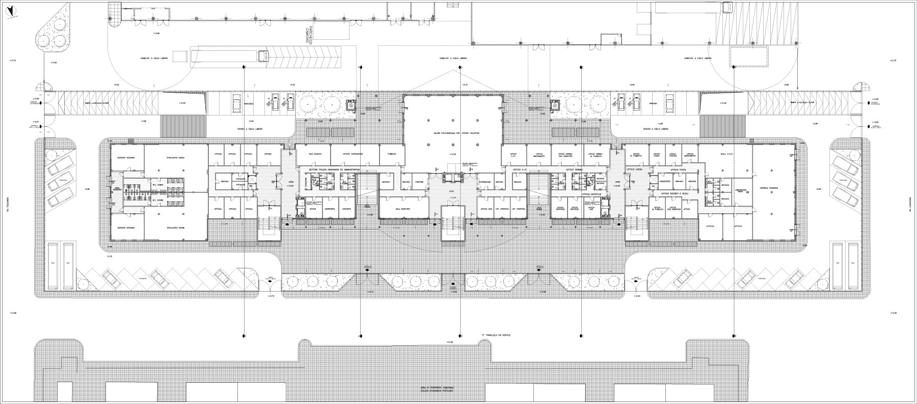
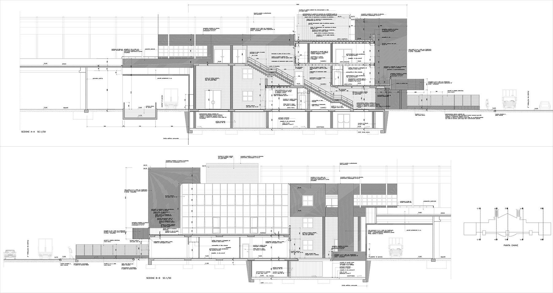
NEW BARI POLICE STATION IN VIA JAPIGIA


DURATION: 2002 – 2004


PLACE: Bari, Italia


TYPE OF ASSIGNMENT: private assignment


BUDGET: 51.645.689 euro


CLIENT: Japigia 200 S.r.l. Torino


PROGRAM: Architectural and structural Design of a business center with annexed underground parking with 2.300 parking spaces


CREDITS: Studio Tecnico Ingg. M.D.F. Sylos Labini


NEW BARI POLICE STATION IN VIA JAPIGIA

Updated on 2016-02-17T19:17:50+01:00, by admin.