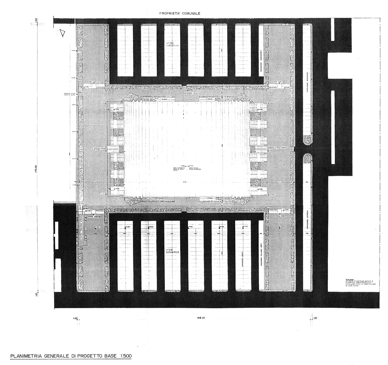
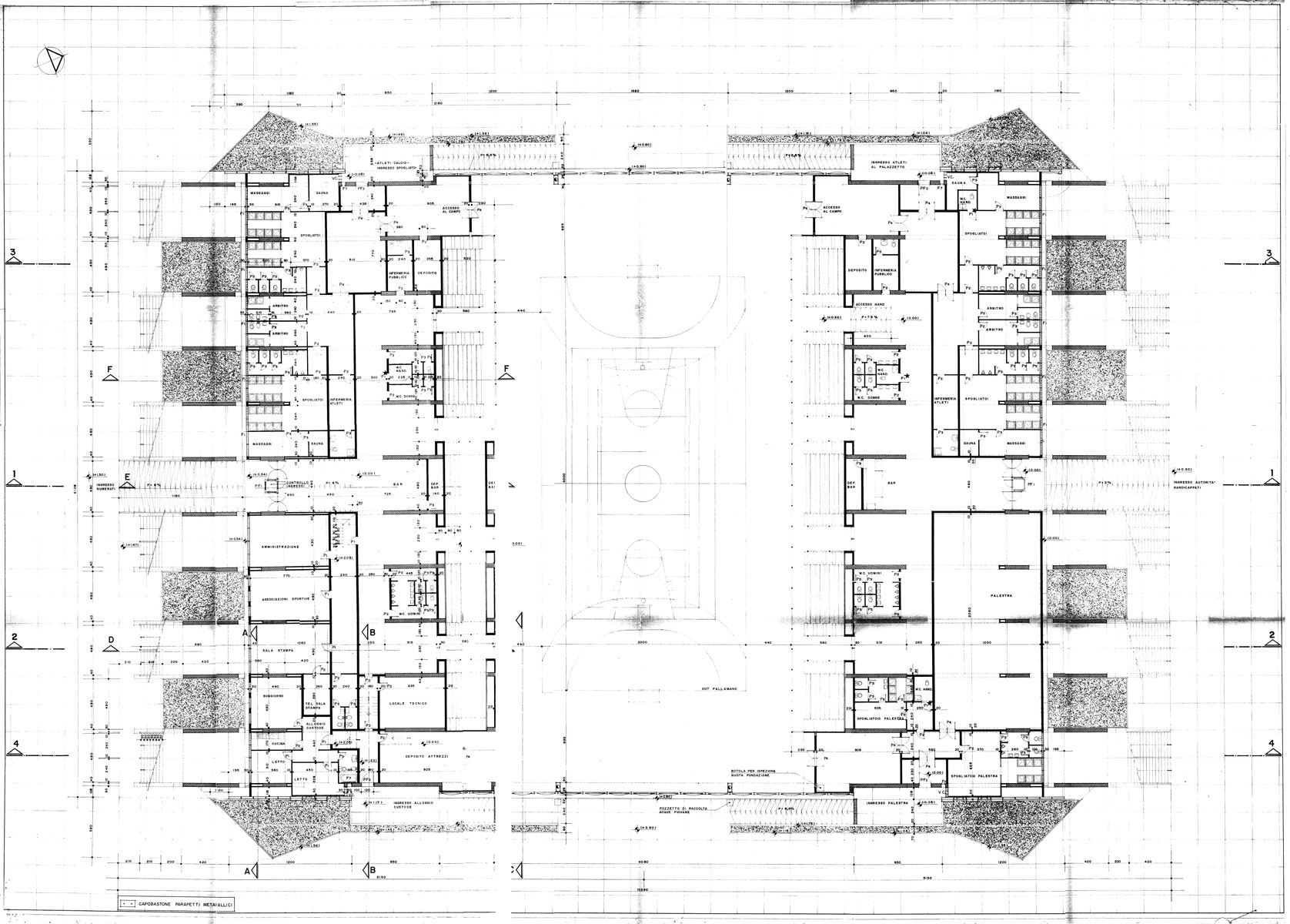
NEW SPORTS HALL VIA JAPIGIA

Sports Hall via Japigia ©google
Sports Hall via Japigia ©google
Sports Hall via Japigia ©google
Sports Hall via Japigia ©google
Sports Hall via Japigia ©google
Sports Hall via Japigia
Sports Hall via Japigia
Sports Hall via Japigia
Sports Hall via Japigia
Sports Hall via Japigia

NEW SPORTS HALL VIA JAPIGIA 


DURATION: 1988 – 1992


PLACE: Bari, Italia


TYPE OF ASSIGNMENT: private assignment


BUDGET: 4.286.592 euro


CLIENT: ATI Prefabbricati Pascazio S.a.s


PROGRAM: Architectural and Engineering Design of the new Sports Hall of the municipality of Bari 


CREDITS: Mauro Sylos Labini, Domingo Sylos Labini and Francesco Sylos Labini


NEW SPORTS HALL VIA JAPIGIA

Updated on 2016-06-07T17:12:19+02:00, by admin.